Maximum Reach Quiz No. 21


FIND:

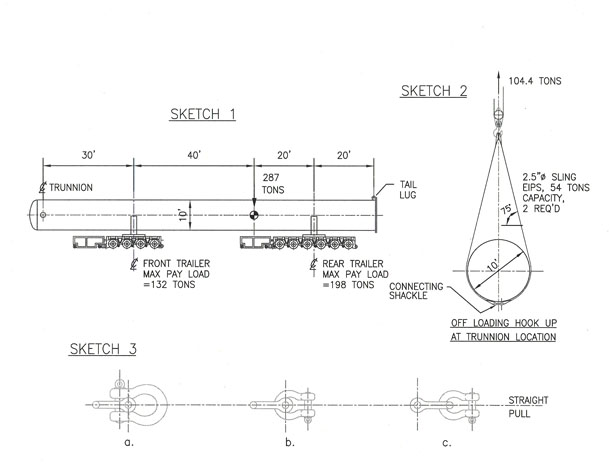
1. Assuming that the crane has adequate lifting capacity and that the trailers are stable for tipping, can the vertical vessel shown in sketch 1 be safely offloaded and placed on cribbing using one crane lifting at either the trunnions or the tail lug? (a.) Yes (b.) No

2. What is the smallest size shackle that can be used to connect the two 2.5" diameter slings shown in the sketch 2?
(a.) 35 ton (b.) 55 ton (c.) 85 ton (d.) 110 ton

3. Assume there is no physical interface when mating Crosby shackles in a straight pull as shown in sketch 3, can they be connected to each other:
(a.) pin to pin (b.) pin to bail (c.) bail to bail


Answer     


    


Maximum Reach Enterprises

Quiz List     

Home Page