Maximum Reach Quiz No. 5

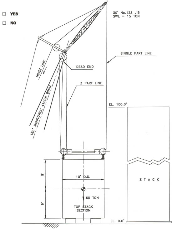
SETTING A STACK SECTION

Traditionally, stack sections up to 30 tons are set using a method where the hoist line runs over the jib point sheave, then down and around the sheaves on the spreader bar and finally dead ended up on the boom tip.

Is it possible to set a 60 ton stack section rigged as shown if there is adequate crane capacity, jib capacity, crane stability and head room?



Answer     


    


Maximum Reach Enterprises

Quiz List     

Home Page